AL-JXB系列变压器中性点间隙接地保护装置
一、概述
1、AL-JXB型变压器中性点间隙接地保护装置用于35KV、110KV、220KV、330KV、500KV电力变压器中性点,以实现变压器中性点接地运行或不接地运行两种不同的运行方式;从而避免由于系统故障,引发变压器中性点电压升高造成对变压器的损害。本产品广泛应用于电力、冶金、石化、建筑、环保等领域。
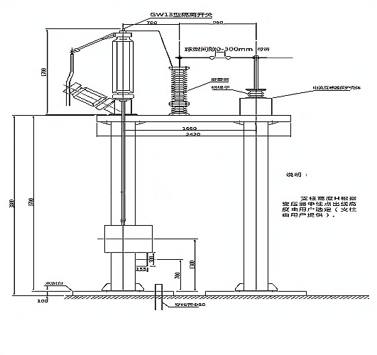
2、一般来说,棒间隙为不均匀电场,放电电压不稳定分散性大决定其保护性能差。球间隙为均匀电场放电电压稳定,分散性小保护性能好。球间隙现场调试比较容易,用户可根据自己地区情况现场调试;而棒间隙尖顶特别难对准,所以现场调试难度大。球间隙采用不锈钢球表面镀银、成本高并且固定要求高,所以许多厂家为降低成本而采用棒间隙,忽略了使用效果。
3、电流互感器选用:采用环氧树脂浇注的干式电流互感器。电流互感器装在不锈钢箱体里,不受环境气候影响,使用寿命长,使保护不会出现误动或拒动且稳定可靠。
二、技术数据
AL-JXB型变压器中性点间隙接地保护装置的技术数据如下表:
|
产品型号 |
变压器额 定电压
kV |
变压器中性点耐受电压 |
隔离开关 |
氧化锌避雷器 |
放电间隙 |
电流互感器 |
||||||
|
雷电全波和截波耐受电压 kV (峰值) |
1min工频
kV (有效值) |
额定电流
A |
操动机构 |
额定电压
kV (有效值) |
持续运行电压 kV (有效值) |
直流1mA 参考电压 kV 不小于 |
8/20µs雷电冲击电流残压 kV (峰值) |
工频放电电压 kV ±10% (有效值) |
型式 |
变比 |
||
|
AL-JXB-110 |
110 |
250 |
95 |
400 |
CS8-5 (手动)或 CJ6 (电动) |
72 |
58 |
103 |
186 |
83 |
环氧树脂浇注全封闭支柱式 10kV 100/5 200/5 300/5 400/5 500/5 600/5 |
|
|
AL-JXB-220 |
220 |
320 |
200 |
600 |
144 |
116 |
205 |
320 |
166 |
|||
|
AL-JXB-330 |
330 |
440 |
292 |
600 |
CJ6 (电动) |
207 |
166 |
292 |
440 |
252 |
||

三、产品特点
1、符合标准,定制生产
AL-JXB型变压器中性点间隙接地保护装置按照GB1985-2004《高压交流隔离开关和接地开关》、
GB/T11022-1999《高压开关设备和控制设备的共用技术要求》、GB11032-2000《交流无间隙金属氧化物避雷器》、DL/T620-1997《交流电气装置的过电压保护及绝缘配合》、GB5583-1985《互感器放电测量》、DL/T620-1997《交流电气装置的过电压保护和绝缘配合》、GB3111.1-1997《高压输变电设备的绝缘配合》以及行业标准的有关规定设计;并有配套工艺流程、检验流程,保证产品制造的流程化、标准化。
2、设计新颖,整体安装
AL-JXB型变压器中性点间隙接地保护装置集隔离开关、氧化锌避雷器、放电间隙和电流互感器等电气设备于一体的成套设备,具有体积小,安装调试方便,可靠性高的特点。
3、有效保护,特性稳定
AL-JXB型变压器中性点间隙接地保护装置主要采用球形放电间隙方式,比惯用的棒形放电间隙放电电压准确率高、分散性小、特性稳定;与避雷器特性及主要变压器的绝缘配合精确、充分有效,热容量大,不易烧损,提高了保护安全性和保护效果。
4、组配灵活,使用方便
AL-JXB型变压器中性点间隙接地保护装置一般采用球形间隙,亦可按用户要求采用棒形间隙。避雷器与隔离开关可根据工程需要任意组合选配。隔离开关的动作亦可按工程要求选择使用手动或电动机构。间隙的技术参数可在工厂完成调试,亦可在现场进行调试。
5、技术力量雄厚,服务周到
我公司为生产厂家,技术力量雄厚,售前的技术交流咨询可随时到位。售后的安装技术指导可按用户要求及时进行。
四、使用条件
1、适用于户内、外;
2、环境温度:不低于-40℃,不高于+55℃;相对湿度:不大于95%(25℃);
3、海拔高度不超过4000m,超出4000m可根据实际情况特制;
4、地震烈度8度及以下地区;风速不超过35m/S;
5、电网频率:58~62Hz(60Hz系统)、48~52Hz(50Hz系统);
6、安装场所的空气中不应含化学腐蚀气体和蒸气。
五、使用须知
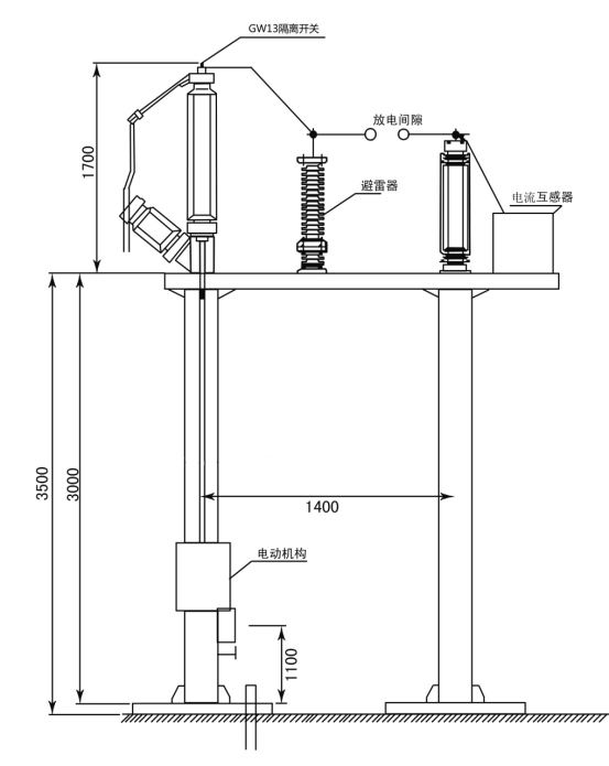
1、变压器中性点电流互感器一般装设在变压器出线套管上,不包括在本装置内。本装置接线图如图6所示。
2、订货时应告知变压器额定电压,电流互感器变比,隔离开关额定电流、操作机构形式,氧化锌避雷器额定电压等参数。当未具体指定时,将按本说明书技术数据标准配置交货。
3、电流互感器二次侧设0.5/10P两个次级。供测量保护使用。不用时应将其短路。
4、连接到变压器中性点的导线截面和型式由用户决定。
六、外形及安装尺寸





|
型 号 |
高 |
宽 |
长 |
底 座 孔 径 |
底 座 孔 距 |
|
AL-JXB-110 |
1315 |
370 |
1300 |
4ר20 |
450×450 |
|
AL-JXB-220 |
1900 |
370 |
1300 |
4ר20 |
450×450 |
|
AL-JXB-330 |
由于体积原因可根据现场情况生产 |
||||

七、运输及储存
1、AL-JXB型变压器中性点间隙保护成套装置装箱运输。
2、运输中应防雨、轻放、向上直立、防碰。
3、存放时应保持直立状态,存放地点环境温度在-40℃~+55℃范围内,不允许有化学物质。
八、安装要求
1、设备可利用底座的4个安装孔进行吊装,不得把吊绳捆绑在瓷柱上,防止损坏设备。
2、固定操作机构的槽钢支架和由操作机构到隔离开关导电杆转轴的钢管,不在本装置的供货范围内。均由安装单位现场制作,长度、尺寸现场确定。
3、设备应可靠接地。
4、产品的外形及尺寸以实际供货为准。
5、隔离开关的安装可参照附件GW8系列中性点隔离开关的安装说明进行。
九、产品验收
1、外观检查:
检查设备外观完好,附件齐全状况外观检查完成后,解开避雷器与间隙连接母线排,打开隔离开关。进行以下参数性能测试:
2、氧化锌避雷器测试:
2.1工频1 mA参考电压试验:
在避雷器两端施加工频电压,当通过避雷器的电流等于1mA时,测量加在避雷器上的工频电压,该电压应不低于避雷器额定电压。
2.2直流1mA参考电压试验:
在避雷器两端施加直流电压(直流电压的脉动部分不大于±1.5%),当通过避雷器的电流为1mA时,测量加在避雷器上的直流电压值,该电压应不得小于技术数据表中的规定值。
2.3泄漏电流试验:
在避雷器两端施加0.75倍直流1mA参考电压,测出流过避雷器的漏电流,该电流值应不大于50μA。
注:严禁给避雷器做工频放电电压试验。
3、隔离开关机械操作和机械特性试验:
对隔离开关进行10次分、合闸空载操作,每次都应达到合闸位置和分闸位置。且整个过程中隔离开关各部分无损害。
4、放电间隙测试:
工频放电电压试验:
在试验变压器原边串联一块10A及以上的电流表。在间隙的进线端子与接地端子N之间施加工频电压,试验时施加到放电间隙的电压应从零开始,在高压侧能准确读数的条件下,迅速升压到间隙放电为止(观察电流表,当电流发生突变时,表明间隙放电,此刻的电压值应为工频放电电压值)。每次放电后,应在0.2秒内切断工频电源。每连续两次试验时间间隔不小于10S,测量次数为3次,每次所测的放电电压值应符合技术数据表中规定。
注:如果工频放电电压值超出范围,可对间隙进行微调。
在上述试验过程中无沿面放电、闪络现象,参数符合要求即为合格。
试验完毕,恢复试验前拆开的避雷器和间隙的连接母线排。